VW Passat B8 4-Motion mise à niveau des freins à l'étrier Porsche Cayenne en liaison avec le Tesla Model X90D (L2S) étrier de frein à main en liaison avec le disque de frein Audi A6 A7 356x22mm (131341)
La demande du client / le problème :
Notre client Benjamin souhaite mettre à niveau son système de freinage sur sa VW Passat B8 4-motion et l'équiper de ces composants sur son essieu arrière :
- original Audi A6 A7 disque de frein356x22mm référence: 4H0 615 601 F
- 4-piston Porsche Cayenne étrier de frein OE: 955.352.421 / 422
- étrier de frein à main électronique Tesla Model X 90D (L2S) 2017 référence: 02125250D
Notre mise en œuvre/solution :
Pour l'essieu en aluminium identique (5Q0505435J), nous avons déjà eu la conversion suivante vers les composants suivants de notre gamme :
- Étriers de frein de la Porsche Cayenne de l'essieu arrière référence:955.352.421 + 955.352.422 Brembo gauche: 20.7673.03 droite : 20.7673.04
- étriers de frein d'origine avec support pour frein à main de la Golf 7R référence : 5Q0615424 / 5Q0615424
- Audi A6 A7 Disque de frein d'origine 356x22 mm référence : 4H0 615 601 F
- Disque de frein ondulé de la Audi RS7 356x22 mm référence : 4G8.615.601
Cela signifie qu'un seul support doit être ajusté ici, car les autres composants sont identiques et nous pouvons utiliser notre adaptateur d'étrier de frein de réglage existant 1091 comme modèle.
Comme nous avons ici le carter de roulement de roue pour la VW Golf 7R (identique à l'essieu arrière de la VW Passat B8 4-motion numéro OE : 5Q0505435J), Benjamin n'a eu qu'à nous donner le disque de frein Audi A6 A7 356x22mm et le frein à main électrique étrier du modèle Tesla X90 D (numéro L2S OE : 02125250D).
Vous recevrez un certificat de matériau approprié pour chaque produit sur mesure
Mesurer/dessiner
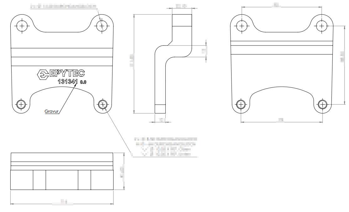
Notre client Benjamin nous a envoyé les composants manquants, nous avons donc tout mis en place pour développer l'adaptateur de réglage d'étrier de frein requis pour la VW Passat B8 4-motion.Étant donné que l'étrier de frein Porsche Cayenne à 4 pistons est également installé dans l'adaptateur de réglage d'étrier de frein 1091, seul l'adaptateur d'étrier de frein de réglage sur lequel l'étrier de frein à main Tesla est monté doit être ajusté.
Prototypage en 3D
Production
Après l'approbation de Benjamin, nous fraisons maintenant l'adaptateur de réglage de frein pour la VW Passat B8 4-motion (5Q0505435J) en relation avec l'étrier de frein à main électrique Tesla Model X 90D (L2S) 2017 (02125250D) avec précision.
Il est ensuite acheminé vers le finisseur de surface.
Montage et Test
Photos d'installation
 
                                                             
                                                                         
     
         
											
																																													
										 
                             
                             
                             
                             
                            