Opel Astra H Tuning des freins sur les étriers de la Megane RS avec le kit Corsa OPC NRE Performance 330mm.
Le souhait / problème du client :
Notre client Niklas souhaite monter sur son Opel Astra H (5 trous) le système de freinage suivant avec ces composants sur son essieu avant :
- Disque de frein : Corsa OPC NRE Performance Kit 330mm Brembo System
- Etriers de frein: Corsa OPC / Megane RS / Alfa Romeo, référence : 208676021a
- Étrier de frein : Alfa Romeo - 77362676 / 77362677
- Disque de frein330mm: Opel - 13453672
- Plaquettes de frein : Alfa Romeo - 71770978
Le cas échéant, des plaques de centrage doivent être utilisées. Par exemple, si l'on souhaite utiliser les jantes originales Opel 7,5J18.
                                         
                                                            Notre réalisation / solution :
- Niklas a commandé via notre configurateur d'étriers de frein.
- Sur la base des dimensions saisies, un prototype est créé avec notre imprimante 3D. Cela permet à Niklas d'économiser l'argent d'un dessin CAD
- Dans notre configurateur d'étriers de frein, tu apprendras comment obtenir ta fabrication spéciale étape par étape.
 
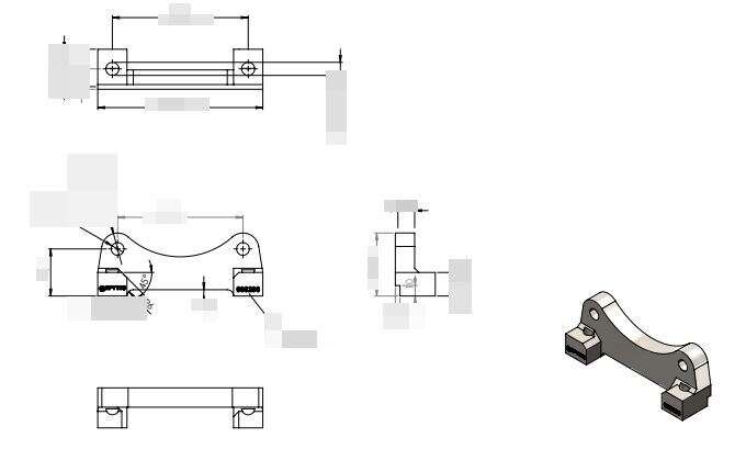
                                                            Prototypage en 3-D
Le prototype final est d'abord envoyé à Niklas pour qu'il puisse tester si tout est bien ajusté et si le système de freinage convient à l'Opel Astra H.  Niklas nous a dit que 1 ou 2 petites modifications devaient être apportées à l'adaptateur de réglage pour que tout soit adapté à 100%.
Nous travaillons toujours avec un modèle 3D au préalable, car il arrive toujours que certaines dimensions et conditions ne puissent pas être prises en compte au préalable sur l'adaptateur de tuning. Grâce au modèle 3D, nous pouvons être sûrs que tout est adapté.
                                         
                                                             
                                                             
                                                            Fabrication
Après l'accord de Niklas, nous fraisons l'adaptateur tuning pour la Opel Astra avec précision. Il est ensuite envoyé chez l'affineur de surface.
 
                                                            Montage et Test
L'adaptateur d'étrier de frein tuning nous est revenu de chez l'affineur de surface et a été directement envoyé à Niklas. Celui-ci a tout monté et nous a envoyé de superbes photos de son nouvel adaptateur de frein - merci beaucoup !
 
                                                            Photos de montage de Niklas
Hier siehst du weitere Bilder vom Bremsen Tuning Umbau auf die Megane RS Bremssättel mit dem Opel Corsa OPC NRE Performance Paket 330mm und unseren Epytec Adaptern. 
Ici, tu peux voir d'autres photos de la transformation du système de freinage sur les étriers de la Megane RS avec le kit Performance 330mm de l'Opel Corsa OPC NRE et nos adaptateurs Epytec. 
 
                                                            Nous t'aidons aussi à trouver ta solution individuelle
Si, comme Niklas tu souhaites que nous réalisions une transformation de ton système de freinage selon tes souhaits, n'hésite pas à nous contacter via notre formulaire de contact et nous t'aiderons à réaliser ton rêve de transformation. Grâce à notre expérience de plus de 15 ans dans la fabrication de pièces de tuning, nous pouvons réaliser ta transformation rapidement et à moindre coût. Nous nous réjouissons de ta demande ! 
Tu souhaites avoir la même combinaison de freins pour la Opel Astra H? Dans ce cas, envoie-nous un message via notre formulaire de contact avec la référence (098296)et nous te ferons parvenir une offre pour ta fabrication spéciale.
                                         
                                                                         
     
         
											
																																													
										 
                             
                             
                             
                             
                            