Mise à niveau des freins de la Honda CRX aux étriers de frein PFC ZR22 sur l'essieu avant en combinaison avec la bague de friction Tarox 320x32 et le pot de disque de frein Epytec
Le souhait / problème du client :
Notre client Maik souhaite monter sur son Honda CRX le système de freinage suivant avec ces composants sur son essieu avant :
- Tarox Anneau de friction 320x32mm
- Etrier de frein: PFC ZR22 Référence . : gauche : 22.323.255.290.01 Référence .: droite: 22.323.255.290.02
Pour la réalisation de son projet, Maik a besoin des adaptateurs de tuning d'étrier de frein appropriés et, pour la bague de friction de 320x32mm, de l'embout de disque de frein correspondant, nous pouvons lui proposer les deux.
                                        
Notre mise en œuvre / solution :
Notre client Maik nous a envoyé les composants suivants :- Tarox Bague de friction 320x32mm
- Boîtier de roulement de roue avant de la Honda CRX
- Étrier de frein: PFC ZR22 Référence gauche: 22.323.255.290.01 Référence droite: 22.323.255.290.02
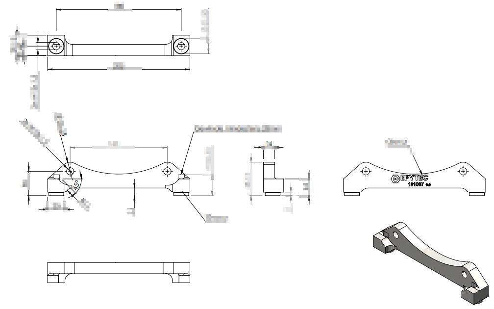
Réalisation du dessin / Mesure
Réalisation du dessin / Mesure
Boîtier de disque de frein pour la bague de friction Tarox 320x32mm
                                        Prototypage en 3 dimensions
Les prototypes finis sont testés dans notre atelier afin de vérifier que tout est parfaitement ajusté et qu'il n'y a pas non plus de défauts.
Nous travaillons toujours avec un modèle 3D au préalable, car il arrive toujours que certaines dimensions et conditions ne puissent pas être prises en compte au préalable sur l'adaptateur de réglage. Grâce au modèle 3D, nous pouvons être sûrs que tout est adapté.
Voici la photo de la bague de friction en 3D
                                        Autres photos de nos modèles 3D
Nous avons pu tester la précision d'ajustage du pot de disque de frein en combinaison avec la bague de friction Tarox de 320x32mm et ainsi tester le modèle 3D de l'adaptateur de tuning d'étrier de frein avec l'étrier de frein PFC ZR 22
                                        
Fabrication
Après l'accord de Maik, nous fraisons l'adaptateur de réglage des freins et la bague de friction pour la Honda CRX. Celui-ci est ensuite envoyé chez l'affineur de surface.
Montage et Test
L'adaptateur de réglage des freins et la bague de friction sont maintenant arrivés chez nous, chez l'affineur de surface, et nous avons pu tout monter à l'essai et livrer à notre client un système de freinage génial.
Voici d'autres photos de l'adaptateur et de la bague de friction
Photos de montage de notre client
Ici, tu peux voir d'autres photos de la transformation du système de freinage de la Honda CRX. Ci-joint quelques belles photos de notre client Maik.
Nous t'aidons aussi à trouver ta solution individuelle
Si, comme Maik, tu souhaites que nous réalisions une transformation de ton système de freinage selon tes souhaits, il te suffit de nous contacter via notre formulaire de contact et nous t'aiderons à concrétiser ton rêve de transformation. Grâce à notre expérience de plus de 15 ans dans la fabrication de pièces de tuning, nous pouvons réaliser ta transformation rapidement et à moindre coût. Nous nous réjouissons de ta demande ! 
Tu souhaites obtenir la même combinaison de freins pour un véhicule identique (Honda CRX) ? Dans ce cas, envoie-nous un message via notre formulaire de contact avec la référence (131067) et nous te ferons parvenir une offre pour ta fabrication spéciale.
                                         
                                                                         
     
         
											
																																													
										 
                             
                             
                             
                             
                            