Envoyer un dessin technique
Tu peux nous envoyer ton dessin technique via notre formulaire de contact. En outre, tu peux voir ici un exemple de la manière dont nous avons réalisé un tel projet avec l'un de nos clients.
Envoie-nous ton dessin technique dans au moins un des formats suivants :
- Parasolid (*.x_t)
- Step (*.step oder *.stp)
- dessin PDF coté
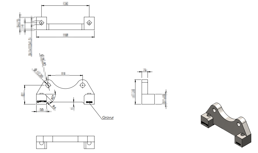
Audi 80 Avant RS2 transformation tuning sur le disque de frein Brembo GT 355x34 avec les étriers de frein RS2 d'origine( 084088 )
Le souhait / problème du client :
Notre client Marek souhaite monter sur l'essieu avant de son Audi 80 Avant RS2 le système de freinage suivant avec ces composants
- Brembo GT 355x34 Disque de frein en deux parties
- Audi RS2 Étriers de frein référence: 8A0 615 106 k
- Emplacement de montage : essieu avant

Notre réalisation / solution :
- Marek nous a envoyé un dessin technique. Nous pouvons reprendre le dessin technique directement dans notre programme de CAD et imprimer un modèle 3D à partir de celui-ci.
- Si tu as également un dessin technique, tu peux nous l'envoyer directement via notre formulaire de contact.

Prototypage 3D
Le prototype 3D terminé est envoyé au préalable à Marek afin de tester si tout est parfaitement ajusté et si le disque de frein Brembo GT 355x34 en deux parties peut être monté avec l'étrier de frein Audi RS2. Marek nous a dit qu'il fallait apporter 1 ou 2 petites modifications à l'adaptateur de réglage pour que tout s'adapte à 100%.
Nous travaillons toujours avec un modèle 3D au préalable, car il arrive toujours que certaines dimensions et conditions ne puissent pas être prises en compte au préalable sur l'adaptateur de réglage. Grâce au modèle 3D, nous pouvons être sûrs que tout est adapté.

Fabrication
Après l'autorisation de Marek, nous fraisons l'adaptateur de frein tuning pour l'Audi Avant 80 RS2 pour qu'il soit parfaitement adapté.
Il est ensuite envoyé chez l'affineur de surface.

Montage et Test
L'adaptateur de frein tuning nous est revenu de chez l'affineur de surface et a été directement envoyé chez Marek. Celui-ci a tout monté et nous a envoyé de superbes photos de montage de son nouvel adaptateur de frein sur l'Audi RS2 Avant 80 - merci beaucoup !

Photos de montage de Marek
Ici tu peux voir d'autres photos de l'Audi RS2 Avant 80 sur le disque de frein Brembo GT 355x43mm en deux parties.


Si tu as également un dessin technique, envoie-le nous directement via notre formulaire de contact.
Nous t'aidons aussi à trouver une solution individuelle.
Si, comme Marek, tu souhaites que nous réalisions une transformation de ton système de freinage selon tes souhaits, n'hésite pas à nous contacter via notre formulaire de contact et nous t'aiderons à concrétiser ton rêve de transformation. Grâce à notre expérience de plus de 15 ans dans la fabrication de pièces de tuning, nous pouvons réaliser ta transformation rapidement et à moindre coût. Nous nous réjouissons de ta demande !
Tu souhaites avoir le même disque de frein pour ton Audi Avant 80 RS2 ? Dans ce cas, envoie-nous un message via notre formulaire de contact avec la référence ( 084088 )et nous te ferons parvenir une offre pour ta fabrication spéciale.