Honda Prelude BA4 16V Bj.1990 Umbau auf Bremssattel Adapter in Verbindung mit der Bremsanlage vom Honda Civic EE9 (Bj. 1990)
Der Kundenwunsch / Problem
Unser Kunde Wilhelm möchte an der Vorderachse seines Honda Prelude BA4 16V Bj.1990 folgende Bremsanlage mit diesen Komponenten verbauen:- 2-Kolben Bremssattel Honda Civic EE9 Bj. 1990 (207784 Brembo 2-Kolben Sattel (Zubehör) für einen Honda Civic EE9 Bj. 1990)
- Bremsscheibe Honda Civic EE9 Bj. 1990 (Brembo 328mm Kennzeichen 911008 für einen Honda Civic EE9 Bj. 1990)

Unsere Umsetzung
Lösung durch unseren Bremssattelkonfigurator:
- in unserem Bremssattelkonfigurator kannst du alle Maße eintragen und wirst Schritt für Schritt geführt, was zu tun ist.
- Anhand der eingetragenen Maße wird automatisch eine Datei für unseren 3D-Drucker erzeugt. Dadurch erspart sich Wilhelm das Geld für eine Zeichnungserstellung.
- Bei unserem Bremssattelkonfigurator siehst du immer den aktuellen Preis und Lieferzeit für deinen Bremssatteladapter.
- Zu jeder Sonderanfertigung über unseren Bremssattelkonfigurator erhältst du ein passendes Materialzertifikat

3-D Prototyping
Der fertige Prototyp geht vorab zu Wilhelm, damit geprüft werden kann, ob alles passgenau ist und die Bremsanlage des Honda Civic EE9 (Bj. 1990) einwandfrei passt.
Wilhelm teilte uns nach dem Probemontieren mit, dass noch 1-2 kleine Änderungen vorgenommen werden sollen, damit alles passgenau ist. Diese haben wir direkt umgesetzt und können nun mit der Fertigung der Tuning Adapter loslegen. Genau aus diesem Grund arbeiten wir mit einem 3D-Modell. Immer wieder kommt es vor, das gewisse Maße oder Gegebenheiten vorab nicht berücksichtigt werden. So können wir sicher sein, dass auf jeden Fall alles passt.


Montage und Test
- Der Tuning Adapter ist vom Oberflächenveredler zurück bei uns angekommen und wurde direkt zu Wilhelm geschickt.

- Dieser hat alles montiert und uns super Einbaubilder von seinem neuen geilen Tuning Adapter geschickt - Vielen Dank dafür!

Hier siehst du ein paar Tuning Umbau Bilder vom Honda Prelude BA4 16V Bj.1990 auf die Bremsanlage vom Honda Civic EE9 (Bj. 1990)



Wir helfen auch dir bei deiner individuellen Lösung
Willst du auch wie Wilhelm einen Tuning Umbau von deiner Bremsanlage nach deinen Wünschen von uns angefertigt haben, dann melde dich bei uns einfach über unser Kontaktformular oder klicke hier um direkt zu unserem Bremssattelkonfigurator für Sonderanfertigungen zu kommen, um deinen Umbau-Traum zu verwirklichen.
Durch unsere mehr als 15 jährige Erfahrung in der Herstellung von Tuningteilen können wir deinen Umbau schnell und kosteneffizient durchführen. Wir freuen uns über deine Anfragen!
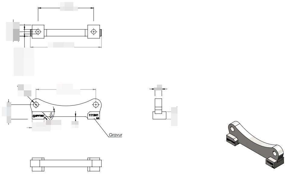
Möchtest du die gleiche Bremsenkombination für das identische Fahrzeug haben, dann schicke uns bitte eine Nachricht über unser Kontaktformular mit dem Verweis 111961 und wir lassen dir ein Angebot zu kommen.
Hier kannst du dir schnell und einfach deine Sonderanfertigung konfigurieren
Universal
Bremssattel Adapter Sonderanfertigung Konfigurator
- ✓ Bremssattel Adapter Sonderanfertigung
- ✓ für Vorderachse und Hinterachse
- ✓ Angaben zum Fahrzeug
111,00 €*
Artikelnummer: BR1
Universal
Stahlflexbremsleitung Stahlflexleitung Sonderanfertigung Konfigurator
- ✓ Wunschmaße
- ✓ schnell konfigurierbar
- ✓ Länge, Farbe und Anschlüsse frei wählbar
46,95 €*
Artikelnummer: SF1
Universal
Zentrierring für Bremsscheibe nach Maß Sonderanfertigung Audi VW Seat Opel Honda
- ✓ Zentrierring exclusive und individuelle Sonderanfertigung
- ✓ Ringe aus hochfestem Stahl
34,00 €*
Artikelnummer: ZRR1
Universal
Lochkreisadapter / Spurverbreiterungs Konfigurator Sonderanfertigung
- ✓ zum selber Konfigurieren
- ✓ mit TÜV Gutachten
- ✓ beste Qualität
96,00 €*
Artikelnummer: LK1