Technische Zeichnung senden
Du kannst uns deine technische Zeichnung einfach über unser Kontaktformular senden. Zusätzliche siehst du hier noch ein Beispiel, wie wir ein solches Projekt mit einem unserer Kunden zusammen umgesetzt haben.
Schicke uns deine technische Zeichnung in mindestens einer der folgenden Formaten:
- Parasolid (*.x_t)
- Step (*.step oder *.stp)
- bemaßte PDF-Zeichnung
Unsere Umsetzung / Lösung:
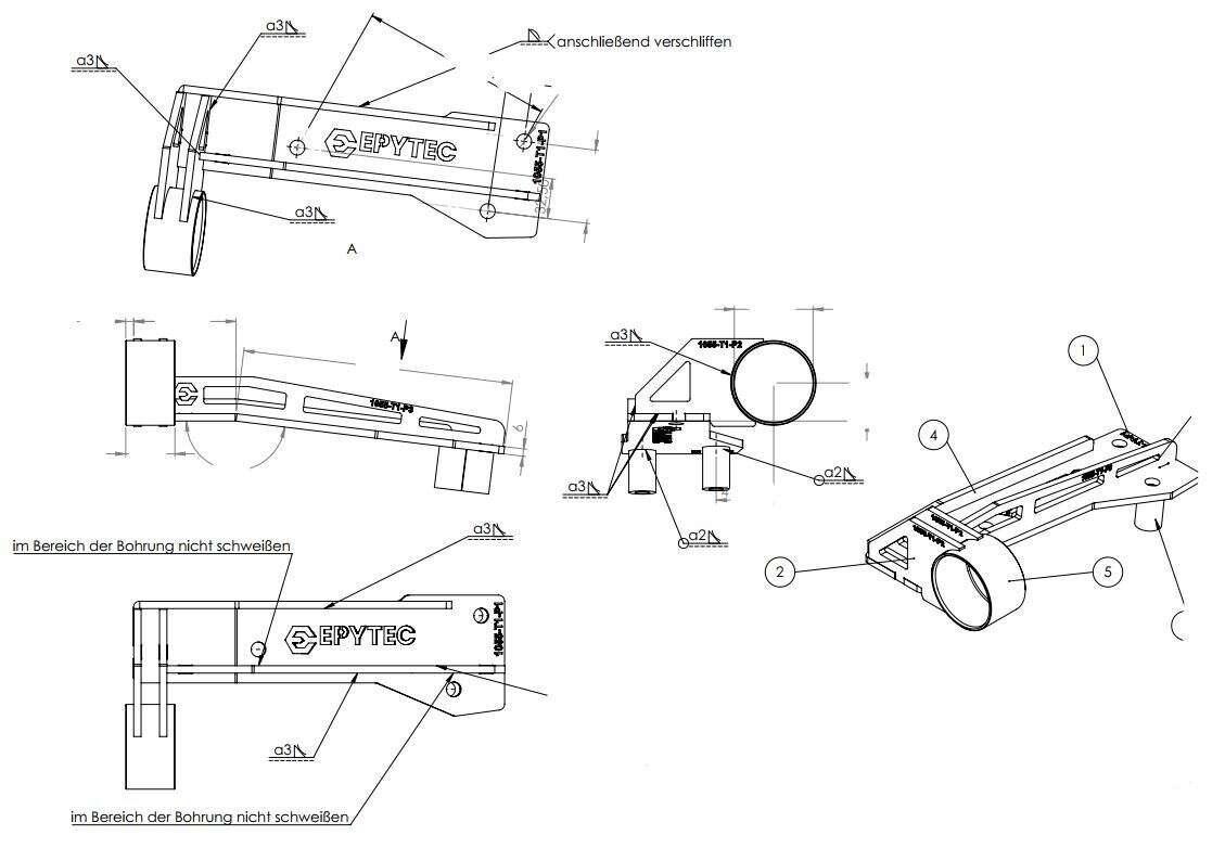
- Michael hat uns dazu eine technische Zeichnung geschickt, wie der Getriebehalter für das 02Q 6-Gang Getriebe aussehen könnte.
- Die technische Zeichnung können wir direkt in unser CAD-Programm übernehmen und anhand dessen ein 3D-Modell drucken
- Hast du auch eine technische Zeichnung, dann kannst du uns diese direkt über unser Kontaktformular schicken.

3-D Prototyping

Hier geht's direkt zum Produkt
- ✓ Golf 1, Caddy 14d, Scirroco 1, Jetta
- ✓ 02M 6-Gang Getriebe, R32 V6, 1,8T 1,9 TDI Motor
- ✓ einfacher Motorumbau
Wir helfen auch dir bei deiner individuellen Lösung
Hier kannst du dir schnell und einfach deine Sonderanfertigung selbst konfigurieren
- ✓ Bremssattel Adapter Sonderanfertigung
- ✓ für Vorderachse und Hinterachse
- ✓ Angaben zum Fahrzeug
- ✓ Wunschmaße
- ✓ schnell konfigurierbar
- ✓ Länge, Farbe und Anschlüsse frei wählbar
- ✓ zum selber Konfigurieren
- ✓ mit TÜV Gutachten
- ✓ beste Qualität
- ✓ Zentrierring exclusive und individuelle Sonderanfertigung
- ✓ Ringe aus hochfestem Stahl